01
滨湖省府2家新盘规划出炉
放风价2.8万/平方米
据合肥市自然资源和规划局消息,置地滨湖BK202204号地块(置地悦玺)、保利滨湖BK202205号地块(保利中交越秀天珺)规划出炉!
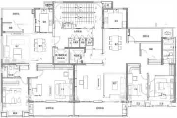
001、置地悦玺
置地滨湖BK202204号地块拟新建12栋住宅,分A、B、C三地块开发。A地块拟建5栋10F小高层+2栋17F小高层+1栋13F小高层+1栋14F小高层+1栋9F小高层+1栋25F小高层,合计772套房。
B地块为12班幼儿园,C地块为公园绿地。
户型图同步曝光(仅供参考)主力户型约130㎡、150㎡、170㎡、180㎡。
1栋、2栋、3栋、9栋:边户150㎡,中间户170㎡
4栋:边户150㎡,中间户170㎡
6栋、7栋:边户150㎡,中间户170㎡
8栋:边户130㎡(该项目最小面积)、 中间户180㎡
10栋 、12栋:边户150㎡,中间户170㎡
11栋:边户150㎡,中间户170㎡
3月22日,23家房企参与滨科城BK202204号地块竞品质,最终由安徽置地竞得,成交单价2065万/亩,总价149723.45万元,住宅楼面价14079.54元/㎡,溢价率 14.72%。
置地悦玺毛坯限价25347元/㎡,再加上精装修,放风价大概在2.8万/㎡,其中8栋边户的130㎡户型是最小户型,总房价在364万-504万。刚需首付3成,约109万。
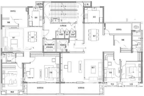
002、保利中交越秀天珺
保利滨湖BK202205地块拟新建14栋住宅,1栋8F洋房+3栋10F小高层+1栋17F小高层+1栋18F小高层+5栋22F高层+3栋20F高层(其中2栋为租赁用房),合计1016套房。
此前微博有消息称,保利BK202205地块户型面积段为110㎡、130㎡、150㎡。(户型尚未出炉,面积段仅供参考)
3月22日,保利以2015万元/亩竞得位于滨湖科学城上海路以西、万泉河路以南的滨科城BK202205号地块,总价177547.8万元,住宅楼面价15112.5元/㎡,溢价率14.81%.
地块面积为91.77亩,其中A地块居住88.02亩,B绿地3.75亩。配建租赁用房比例是15%,商品住宅(毛坯)平均备案价格26351元/㎡。
本文来自投稿,不代表展天博客立场,如若转载,请注明出处:https://www.me900.com/267701.html




