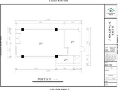
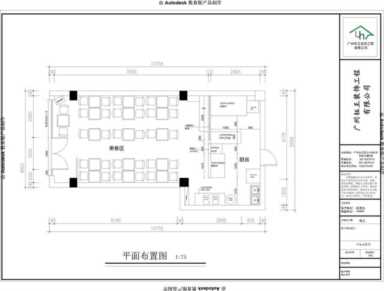
项目:饭店装修设计案例
面积:100平
风格:现代与中式结合
案例说明:本案例经营传统快餐店,在当下口罩经济的影响下,商家想尽量能压缩成本,但又要确保顾客能有一个好的用餐环境。
本案采用现代简约风格为主,将中式山水画等进行点缀,让大多都市打工一簇仿然在自己的家乡吃着妈妈炒的菜。。。有一种温馨、乡愁之感。
钰王装饰专注整装、别墅、商业装修设计20年,行业专家。欢迎咨询师。胡设计
本文来自投稿,不代表展天博客立场,如若转载,请注明出处:https://www.me900.com/304918.html



